So sánh sản phẩm
chọn tối đa 4 sản phẩm

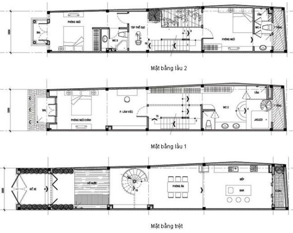
Thiết kế nhà phố mặt tiền 6.5 anh Dũng Bình Phước

Ngày đăng : 14:28:06 05-10-2016
Thương hiệu Nhà Việt Xanh sau 1 năm hình thành ở Phước Long -Bình Phước chúng tôi  giờ đã  là nơi tin cậy để mọi người tin tưởng giao phó thiết kế và thi công nhà của mình .Anh Dũng củng không phải là ngoại lệ đã tìm đến công ty chúng tôi để Thiết kế nhà phố mặt tiền 6.5 khi chúng tôi đang thi công nhà phố anh Chiến, anh được chủ nhà giới thiệu để chúng tôi thiết kế và thi công căn nhà của anh .
Thông tin dự án:
Chủ đầu tư :anh Dũng
Đc:khu dân cư sân bay Phước Long Bình Phước
Thiết kế :kts Võ Thanh Lâm ,kết cấu ks Lê Phi Thạch,ME ks Văn Bá Thanh
Phong cách kiến trúc :tân cổ điển kiểu pháp

 










Tags: